LUMINOSO TRILOCALE ARREDATO
Proprietà › Residenziali in affitto
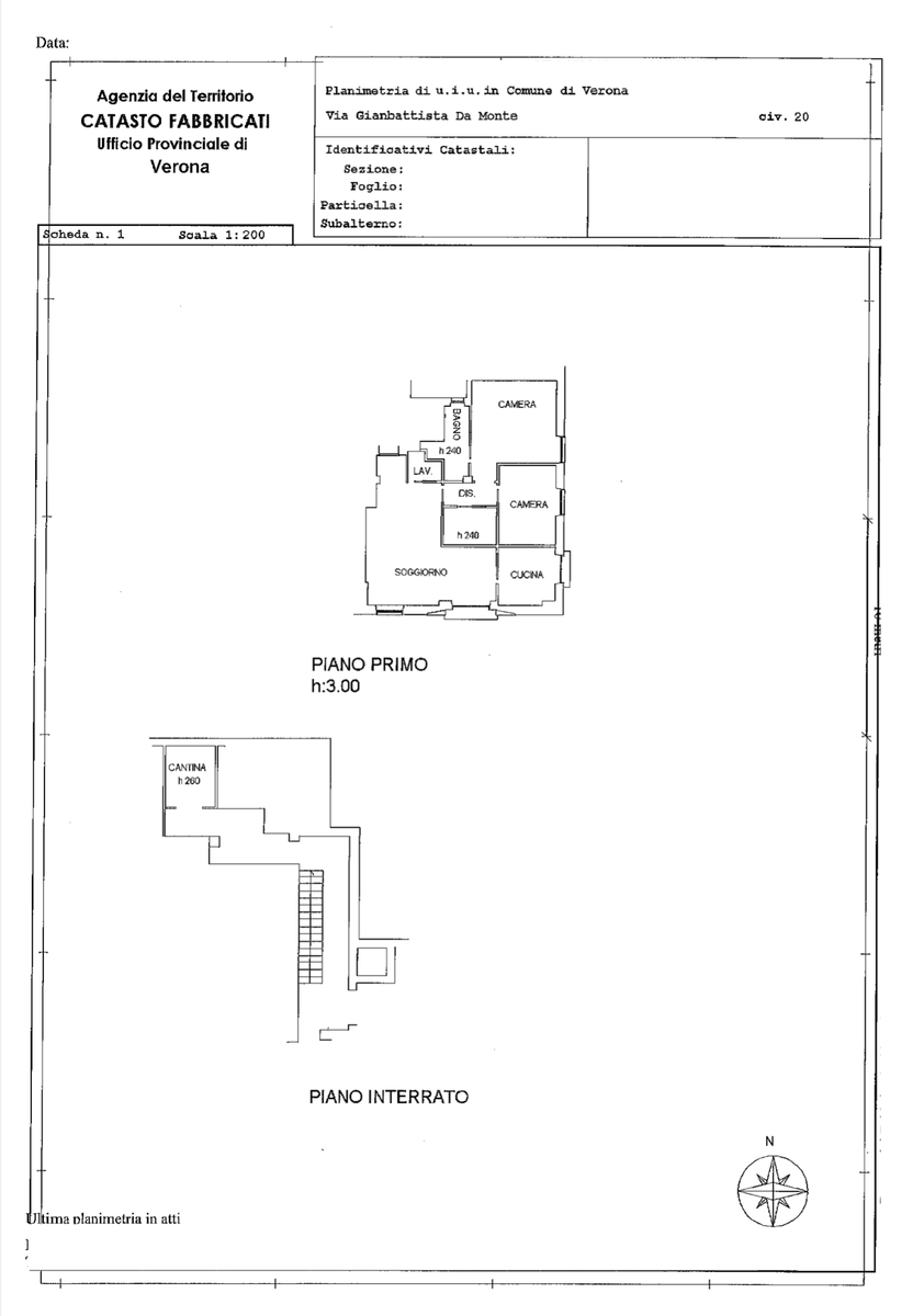
Nel quartiere di Borgo Trento, adiacente all'ospedale e comodo ai principali servizi, proponiamo un appartamento ristrutturato completamente nel 2010 in buone condizioni di manutenzione generale e completo di arredamento. L'unità abitativa, servita da ascensore e posta al piano primo, si compone di un ingresso, soggiorno con piccolo balcone, una cucina con altro balcone ed un ripostiglio con lavatrice; nella zona notte vi è la camera principale con bagno finestrato interno, la seconda camera da letto ed il secondo bagno a ventilazione meccanica forzata. Completa la proprietà, una cantina al piano interrato. Data la posizione del fabbricato e la tipologia distributiva interna, è molto indicato per eventuali condivisioni di medici specializzandi o personale sanitario a servizio dell'ospedale. Possibilità di contratto ad uso transitorio oppure 3 + 2. Disponibile dal 15/09/2025.
- Canone mensile: € 1.100
- Camere: 2
- Numero Locali: 3
- Soggiorno/Salotto: 1
- Livelli: 1
- Serramenti esterni: tapparelle in plastica
- Condizione immobile: buono
- Arredamento: completo
- Riscaldamento: teleriscaldamento
- Aria condizionata
- Balcone
- Cancello Elettrico
- Anno costruzione: 1962
- IPE kWh/m² anno: 132,00
- Mq: 90 m2
- Bagni: 2
- Cucina: abitabile
- Piano: 1
- Spese cond (€/mese): 125,00
- Serramenti interni: doppio vetro/plastica
- Stato stabile: discreto
- Stato Arredamento: buono
- Tipo Riscaldamento: altro
- Ascensore
- Cantina / Ripostiglio
- Citofono
- Classe energetica: D
Informazioni
Andrea Ruffo
Agente immobiliare, titolare e fondatore di Scala Immobiliare
Contatti
Immobili simili
BILOCALE CON INGRESSO INDIPENDENTE
Verona (VR) - zona
All'interno di un palazzo storico vincolato, oggetto di un'attenta ed accurata ristrutturazione tota...
VediAPPARTAMENTO CON INGRESSO INDIPENDENTE
Verona (VR) - zona
Con ingresso indipendente, ubicato in zona ZTL, disposto su piano terra con collegata una porzione i...
Vedi

